今回ヴィダックス渋谷店がご紹介する物件は、渋谷区神宮前のハイスペックマンション「神宮北参道レジデンス」でございます 。2022年8月31日に建ったばかりのこちらの築浅マンション 。今回は二人暮らしにもオススメな1LDKのお部屋、503号室をご紹介させていただきます 。
渋谷駅、原宿駅までもアクセス抜群の好立地、渋谷区神宮前に位置する「神宮北参道レジデンス」について紐解いていきます 。
最寄り駅は「副都心線」の「北参道駅」や「山手線」の「原宿駅」など、複数沿線利用可能で大変便利です。
そんな「神宮北参道レジデンス」。気になる方は是非詳細ご確認ください。
「神宮北参道レジデンス」について
「神宮北参道レジデンス」の物件概要

| 所在地 | 東京都渋谷区千駄ヶ谷3丁目2-7 |
|---|---|
| 最寄駅 | 東京メトロ副都心線 / 北参道3分 |
| 築年数 | 2022年8月 |
| 間取り | 1LDK |
| 構造 | 鉄筋コンクリート造 |
「神宮北参道レジデンス」の室内詳細
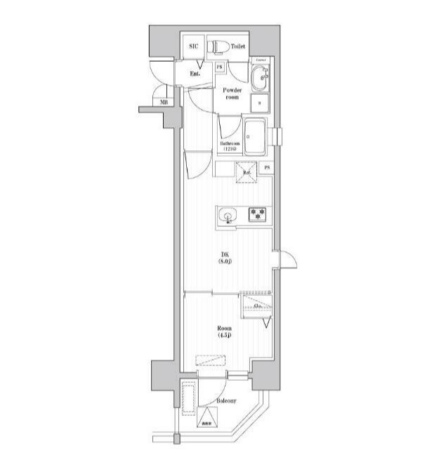
間取り

都市ガス / インターネット / 室内洗濯機置場 / ガスコンロ2口 / バストイレ別 / 浴室乾燥機 / 温水洗浄便座 / 洗面台 / 洗面所独立 / システムキッチン / クロゼット / 給湯 / フローリング / エアコン / CS / BS / ダブルロックキー / オートロック / モニター付きオートロック / ディンプルキー / 防犯カメラ / 宅配ボックス / 24時間換気システム
※設備をクリック頂くと設備で条件を絞ることが可能です
LDK/洋室

こちらは1LDKタイプ、専有面積33.63㎡のお部屋でございます。2面採光を確保しているため、日当たりが大変良好で、一日中明るい陽射しが室内に差し込みます。また、憧れのカウンターキッチンや充実した設備が揃っております。広々とした空間は、初めての二人暮らしを始められる方に特におすすめです。快適で穏やかな暮らしを叶える、理想的なプライベート空間です。
キッチン

こちらのキッチンは、お料理のしやすさを考慮した機能的なシステムを採用しております。2口ガスコンロを備えており、日常の調理はもちろん、本格的なお料理も楽しんでいただけます。
また、十分な調理スペースに広々したシンクを確保。大型の冷蔵庫や様々なキッチン家電もゆったりと配置できる設計で、調理効率が格段にアップします。
バスルーム

壁面はブラウンの木目調パネルでデザインされ、明るい照明と相まってモダンで上質な雰囲気を演出しています。窓があるため、換気や明るさも確保でき、より開放的なバスタイムをお楽しみいただけます。
「神宮北参道レジデンス」のおすすめポイント
お部屋探しでお困りの方へ
株式会社ヴィダックスでは、渋谷を中心に東京都内の最新の賃貸情報(マンション・アパート・戸建)をお届けしています。
任せてよかったと納得、安心していただけるお部屋探しのサポートを提供させていただきます。
ご希望のお部屋がホームページに掲載されていない場合でもご安心ください。家主様のご都合でインターネットに掲載できないご希望エリアの物件をご紹介させていただきます。
「賃貸・売買で契約の事がわからない」「遠方で来店ができない」「初期費用を抑えたい」等のお悩みはお気軽にご相談ください。