今回ご紹介させていただく「コンポジット渋谷本町」は、東京都渋谷区本町5丁目8番11号にそびえる地上5階建ての賃貸マンションです。
都営大江戸線・西新宿五丁目駅 徒歩11分、京王線・幡ヶ谷駅 徒歩13分からアクセスが可能となっております。
2024年8月に誕生したこのマンションは、鉄筋コンクリート造の構造となっております。
「コンポジット渋谷本町」について
「コンポジット渋谷本町」の物件概要

| 所在地 | 東京都渋谷区本町5丁目8番11号 |
|---|---|
| 最寄駅 | 都営大江戸線/西新宿五丁目駅 徒歩11分 京王線/幡ヶ谷駅 徒歩13分 |
| 築年数 | 2024年8月 |
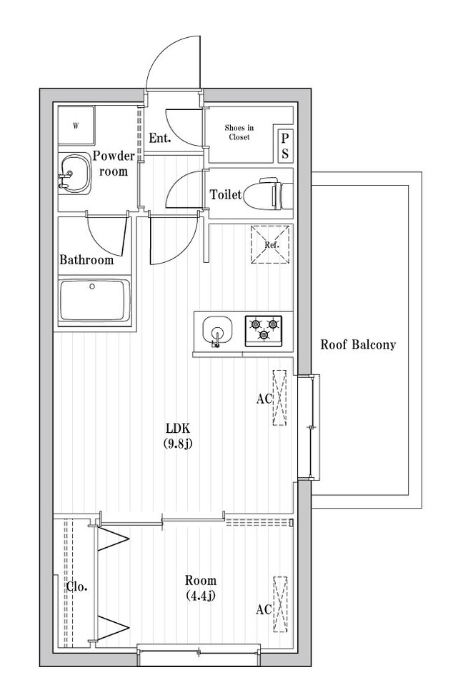
| 間取り | 1LDK |
| 構造 | 鉄筋コンクリート |
「コンポジット渋谷本町」の室内詳細
間取り

※設備をクリック頂くと設備で条件を絞ることが可能です
洋室

こちらの洋室は、白を基調とした内装と淡い木目調フローリングが印象的な明るく清潔感のある空間です。
大きな窓からは自然光がしっかりと入り、日中は照明をつけなくても十分な明るさを確保できます。
リビングと隣接した造りになっており、引き戸を開ければ一体感のある広々とした空間として使えるのも魅力。
来客時や生活シーンに応じて、プライベート空間としてもオープンな空間としても柔軟に使い分けが可能です。シンプルな内装は家具やインテリアを選ばず、ナチュラル・モダン・北欧テイストなど、幅広いコーディネートを楽しめます。寝室としてはもちろん、在宅ワーク用の書斎や趣味部屋としても活用しやすい洋室です。
キッチン

木目調のパネルが印象的なシステムキッチンは、室内全体の雰囲気と調和したナチュラルで上品なデザイン。
リビングを見渡せる対面式のレイアウトで、料理をしながら会話やテレビを楽しめる開放感のある空間です。2口ガスコンロを備えており、自炊派の方にも使いやすい仕様。シンクと調理スペースのバランスも良く、毎日の料理がスムーズに行えます。上下に収納スペースがしっかり確保されているため、調理器具や食器類もすっきり整理可能です。
バスルーム

木目調のアクセントパネルが落ち着いた印象のバスルーム。
白を基調とした空間なので、全体的に明るく清潔感があります。
浴室乾燥機付きのため、雨の日や花粉の時期でもお洗濯ができるのも嬉しいポイント。
鏡や棚も備え付けられているので、シャンプー類もすっきり置けて使い勝手。
一人暮らしでもゆったり湯船に浸かれるサイズ感で、
毎日の疲れをしっかりリセットできる空間です。
水回り

毎日の身支度がしやすい、清潔感のある洗面スペース。
木目調で統一された洗面台は、明るくやさしい印象。
三面鏡タイプなので、身だしなみのチェックもしやすく、鏡裏には収納スペースもあり、洗面周りをすっきり保てます。洗面台の横には洗濯機置き場があり、動線もコンパクトで家事がしやすい配置。
脱衣所としてのスペースもしっかり確保されているので、朝の準備や帰宅後の手洗いもスムーズです。
バルコニー

開放感たっぷりのバルコニーから、都心を一望。広々としたバルコニーは、視界を遮るものが少なく、空と街並みをしっかり感じられる開放的な空間。
晴れた日は自然光がたっぷり入り、洗濯物も気持ちよく干せそうです。都心ならではの景色を楽しめるので、
朝のコーヒータイムや、夜に外の空気を吸ってリフレッシュするのにもぴったり。室内だけでなく、外に出て気分転換ができるスペースがあるのは嬉しいポイントです。
「コンポジット渋谷本町」のおすすめポイント
お部屋探しでお困りの方へ
株式会社ヴィダックスでは、渋谷を中心に東京都内の最新の賃貸情報(マンション・アパート・戸建)をお届けしています。
任せてよかったと納得、安心していただけるお部屋探しのサポートを提供させていただきます。
ご希望のお部屋がホームページに掲載されていない場合でもご安心ください。家主様のご都合でインターネットに掲載できないご希望エリアの物件をご紹介させていただきます。
「賃貸・売買で契約の事がわからない」「遠方で来店ができない」「初期費用を抑えたい」等のお悩みはお気軽にご相談ください。