今回ご紹介させていただきます「G・コンフォート大山山手通り」は、板橋区役所前・大山エリアに近接する人気の賃貸マンション。都営三田線「板橋区役所前」駅、東武東上線「大山」駅の2駅が利用可能で、都心へのアクセスも良好。周辺にはハッピーロード大山商店街という商店街もあり、生活利便性に優れています。重厚感のある外観と充実した設備が魅力で、単身者の方にオススメです。仕事や通学に便利な立地で、都市生活を快適に楽しめる住まいです。
「G・コンフォート大山山手通り」について
「G・コンフォート大山山手通り」の物件概要

| 所在地 | 東京都板橋区大山金井町14-10 |
|---|---|
| 最寄駅 | 東武東上線/大山駅 徒歩9分 |
| 築年数 | 2008年8月 |
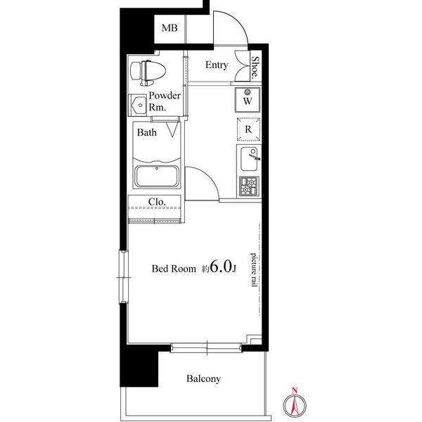
| 間取り | 1K |
| 構造 | 鉄筋コンクリート |
「G・コンフォート大山山手通り」の室内詳細
間取り

※設備をクリック頂くと設備で条件を絞ることが可能です
LDK/洋室

こちらは1Kタイプ、洋室6帖でございます。(お部屋は10階・角部屋)南向きに加え二面採光を確保しているため、日当たりが大変良好で、一日中明るい陽射しが室内に差し込みます。広々とした空間は、初めての一人暮らしを始められる方に特におすすめです。快適で穏やかな暮らしを叶える、理想的なプライベート空間です。
キッチン

こちらのキッチンには、魚焼きグリル付きの2口ガスコンロを備えており、本格的な調理も可能で、料理好きの一人暮らしに嬉しい、機能的なシステムキッチンです。また、広めのシンクは大きな調理器具も洗いやすく、日々の後片付けのストレスを軽減します。白を基調とした清潔感のあるデザインで、使いやすさを追求。毎日の自炊をしっかりサポートする、快適で充実したキッチン空間です。
バスルーム

単身者の暮らしに寄り添った機能的で快適な設計となっています。バス・トイレが独立した造りで、プライベート空間をしっかりと分けることができます。浴室には浴室乾燥機が標準装備されており、雨の日でも洗濯物を乾かすことが可能です。全体は白を基調としたユニットタイプで、清潔感のある明るい雰囲気に仕上げられています。また、給湯機能付きでお湯の温度調整も簡単に行えるなど、日々の使い勝手にも配慮された仕様です。
脱衣所

コンパクトながらも使い勝手を重視した設計になっています。バスルームとトイレが独立しているため、脱衣スペースとしてしっかりと確保されており、入浴前後の身支度をゆったりと行うことができます。内装は明るい色調で清潔感があり、毎日の生活に快適さを感じられる空間です。限られた面積の中でも機能性と快適性を両立させた、シンプルで整った脱衣所となっています。
収納

限られた空間の中でも効率的に整理整頓ができるよう工夫されています。洋室にはクローゼットが設けられており、衣類や日用品をすっきりと収納可能です。奥行きのある設計で、ハンガーパイプを利用すればコートやワンピースなどの丈の長い衣類もきれいに掛けられます。上部には棚も備わっており、季節物の収納や小物の整理にも便利です。全体的にシンプルで使いやすい構造となっており、一人暮らしに十分な収納力を確保しています。限られたスペースを有効活用し、生活空間をすっきりと保てる設計が魅力です。
眺め

高層階ならではの開放感あふれる眺望が魅力です。南向きのバルコニーからは明るい日差しがたっぷりと差し込み、晴れた日には遠くまで見渡せる心地よい景色を楽しむことができます。周囲に高い建物が少ないため、圧迫感がなく、都会にいながらも空の広がりを感じられる点が特徴です。夜には、街の明かりがきらめく落ち着いた夜景を眺めながら、静かな時間を過ごすことができます。日中は明るく、夜は穏やかな雰囲気を楽しめる、心地よい眺めの住まいです。
「G・コンフォート大山山手通り」のおすすめポイント
お部屋探しでお困りの方へ
株式会社ヴィダックスでは、渋谷を中心に東京都内の最新の賃貸情報(マンション・アパート・戸建)をお届けしています。
任せてよかったと納得、安心していただけるお部屋探しのサポートを提供させていただきます。
ご希望のお部屋がホームページに掲載されていない場合でもご安心ください。家主様のご都合でインターネットに掲載できないご希望エリアの物件をご紹介させていただきます。
「賃貸・売買で契約の事がわからない」「遠方で来店ができない」「初期費用を抑えたい」等のお悩みはお気軽にご相談ください。