今回ご紹介させて頂きます「ザ・パークハビオ神泉」は、渋谷区内に位置し、利便性の高い立地が魅力の賃貸物件です。最寄りの2駅(渋谷駅、神泉駅)へ徒歩圏内でアクセス可能。JR山手線「渋谷」駅から徒歩13分、京王井の頭「神泉」駅から徒歩7分と、複数路線が利用可能な好立地にあります。
「ザ・パークハビオ神泉」について

「パークハビオ神泉」の物件概要
| 所在地 | 東京都目黒区駒場 |
|---|---|
| 最寄駅 | 京王井の頭線/神泉駅 徒歩7分 |
| 築年数 | 2021年5月 |
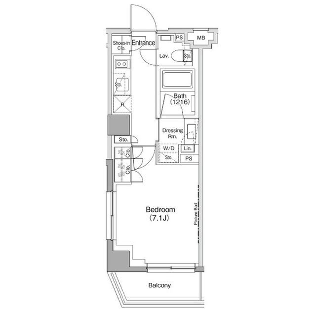
| 間取り | 1K |
| 構造 | 鉄筋コンクリート |
「ザ・パークハビオ神泉」の室内詳細
間取り

間取り
水道(公営) / ガス(都市) / 排水(下水) / バス専用共同(専用) / トイレ専用共同(専用) / バス・トイレ別 / コンロ種別(ガス)/ システムキッチン / エアコン / 室内洗濯機置き場 / BSアンテナ / オートロック / エレベータ / バルコニー / フローリング / 宅配ボックス / 駐輪場 / internet対応(その他インターネット) / TVドアホン / 温水洗浄便座 / 浴室乾燥機 / ごみ出し24時間OK / 独立洗面台 / 防犯カメラ / カード決済(初期費用) / クローゼット / シューズボックス / インターネット無料/ ペット可 / 敷地内ゴミ置き場
※設備をクリック頂くと設備で条件を絞ることが可能です
室内

こちらは1Kタイプ、洋室7.1帖でございます。角部屋二面採光、グレードも高く、初めての一人暮らしを始められる方に特におすすめです。快適で穏やかな暮らしを叶える、理想的なプライベート空間です。*写真はモデルルームです。
飲食可能な共有ラウンジ

仕事も人脈も広がる。コミュニティの中心、共有ラウンジへようこそ。
エントランスホール

重厚感のあるエントランスホール。
エントランスと玄関の2つのロックで守られているので防犯対策につながるオートロック機能が付いております。荷物が届く予定があっても、宅配ボックスがあれば気にせず外出することができます。防犯カメラが付いているため犯罪への抑止力となり、安全性が高くなります。
エントランス

住人以外が住居エリアに侵入しにくく安全性が上がるオートロック機能を備えています。共用部には宅配ボックスが備え付けられているため、家で何時間も待機する必要がなくなります。キッズルームのある物件です。こちらの物件はエレベーター付きです。
「ザ・パークハビオ神泉」のおすすめポイント
お部屋探しでお困りの方へ
株式会社ヴィダックスでは、渋谷を中心に東京都内の最新の賃貸情報(マンション・アパート・戸建)をお届けしています。
任せてよかったと納得、安心していただけるお部屋探しのサポートを提供させていただきます。
ご希望のお部屋がホームページに掲載されていない場合でもご安心ください。家主様のご都合でインターネットに掲載できないご希望エリアの物件をご紹介させていただきます。
「賃貸・売買で契約の事がわからない」「遠方で来店ができない」「初期費用を抑えたい」等のお悩みはお気軽にご相談ください。