今回ご紹介させていただきます「プラウドフラット大森Ⅲ」はJR京浜東北線「大森」駅から徒歩4分の好立地。
大森駅前にはアトレ大森や飲食店、スーパー、カフェなどが立ち並び、日々の暮らしに必要なものがすぐ揃う便利なロケーション。駅前は栄えてますが一本奥へ入ると落ち着いた住宅街が広がるのが“大森”の魅力です。
仕事もプライベートもバランスよく楽しめる、都心近接エリアならではの快適さを感じられます。
「プラウドフラット大森Ⅲ」について
「プラウドフラット大森Ⅲ」の物件概要

| 所在地 | 東京都品川区南大井6丁目 |
|---|---|
| 最寄駅 | JR京浜東北・根岸線/大森駅 徒歩4分 |
| 築年数 | 2024年10月 |
| 間取り | 1K |
| 構造 | 鉄筋コンクリート |
「プラウドフラット大森Ⅲ」の室内詳細
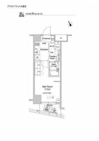
間取り

水道(公営) / ガス(都市) / 排水(下水) / バス専用共同(専用) / トイレ専用共同(専用) / バス・トイレ別 / コンロ種別(ガス) / コンロ口数(二口) / システムキッチン / エアコン / 室内洗濯機置き場 / CATV / CSアンテナ / BSアンテナ / オートロック / エレベータ / バルコニー / フローリング / 宅配ボックス / 駐輪場 / バイク置き場 / internet対応(光ファイバー) / TVドアホン / 温水洗浄便座 / 浴室乾燥機 / 防犯カメラ / ルームシェア不可 / クローゼット / シューズボックス / 楽器相談不可 / 事務所不可 / 二人入居不可 / 単身者限定 / ペット対応 / 敷地内ゴミ置き場
※設備をクリック頂くと設備で条件を絞ることが可能です
洋室

白い壁と明るめの木目フローリングで統一された空間は、清潔感がありながらも温かみを感じられるデザイン。
照明の柔らかな光がお部屋に広がり、居心地のいい雰囲気をつくっています。
壁や天井の梁がアクセントになっていて、シンプルな中にも立体感のある印象に。
キッチン

シンプルかつ使い勝手の良さが魅力のシステムキッチンを完備。
コンロは2口仕様で、毎日の料理もスムーズに行えます。
シンクとの距離も程よく、調理から片付けまでの動線がしっかり考えられております。
吊戸棚と下部収納があり、調理器具や食器などもスッキリと片付け可能。
バスルーム

毎日がちょっと楽しみになるバスルーム。
浴槽はゆったりサイズで、足を伸ばしてリラックスできる設計。
また、浴室乾燥機を完備しているので、雨の日の洗濯物も安心。
お手入れしやすい素材を使用しており、掃除のしやすさも嬉しいポイントです。
独立洗面台

ホワイト基調で統一された、明るく清潔感あふれる洗面スペースです。鏡裏には三面鏡収納が設けられており、化粧品や日用品を効率よく整理できます。また、洗面台の上部には吊戸棚を設置することで、リネン類やストック品など、かさばる物をすっきりと片付けられる十分な収納力を確保。トイレと同室でありながら、明るい照明とシンプルなデザインで、機能的な水回り空間を実現しています。
外観

白とダークカラーのコントラストが際立つ、モダンでスタイリッシュなファサードが特徴です。バルコニーには採光性の高い透明なガラスパネルを採用することで、建物全体に軽快なリズムと開放感をプラス。特に上層階のバルコニーの緩やかなカーブがアクセントとなり、見る人に洗練された印象を与えます。エントランス上部はセットバックし、植栽を配置することで、都会的ながらも穏やかなアプローチを演出しています。
エントランス

シャープな石材調の壁面と、モダンなダークグレーのフロアタイルが調和した、落ち着きのあるエントランスです。大型のガラスドアを採用し、外からの光を取り込みつつ、内部の様子が見える安心感も高めています。壁一面に整然と配置されたメタリックなメールボックスは、デザイン性の高いアクセントにもなっています。防犯カメラも設置されており、居住者の安全を守るセキュリティラインとしての役割も果たしています。
「プラウドフラット大森Ⅲ」のおすすめポイント
お部屋探しでお困りの方へ
株式会社ヴィダックスでは、渋谷を中心に東京都内の最新の賃貸情報(マンション・アパート・戸建)をお届けしています。
任せてよかったと納得、安心していただけるお部屋探しのサポートを提供させていただきます。
ご希望のお部屋がホームページに掲載されていない場合でもご安心ください。家主様のご都合でインターネットに掲載できないご希望エリアの物件をご紹介させていただきます。
「賃貸・売買で契約の事がわからない」「遠方で来店ができない」「初期費用を抑えたい」等のお悩みはお気軽にご相談ください。
