今回ヴィダックス渋谷店がご紹介する物件は、東京都港区南青山7丁目のハイスペックマンションでございます。2023年9月に建ったばかりのこちらの築浅マンション。今回は一人暮らしにオススメな1Rのお部屋をご紹介させていただきます。
銀座線・表参道駅まで徒歩10分で渋谷駅、原宿駅までもアクセス抜群の好立地。今回はそんなザ・パークハビオSOHO南青山について紐解いていきます。
最寄り駅は「銀座線・千代田線」の「表参道駅」から徒歩10分「日比谷線」の「広尾駅」から徒歩14分の3沿線利用可能です。
そんな「ザ・パークハビオSOHO南青山」。気になる方は是非詳細ご確認ください。
「ザ・パークハビオSOHO南青山」について
「ザ・パークハビオSOHO南青山」の物件概要

| 所在地 | 東京都港区南青山7丁目4番1号 |
|---|---|
| 最寄駅 | 銀座線・千代田線/表参道駅 徒歩10分 |
| 築年数 | 2023年9月 |
| 間取り | 1R・1DK |
| 構造 | 鉄筋コンクリート造 |
「ザ・パークハビオSOHO南青山」の室内詳細
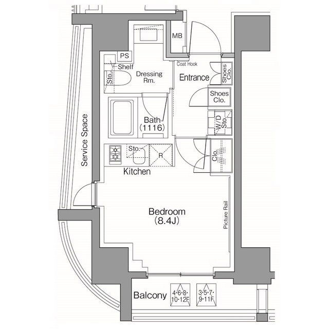
間取り

バス・トイレ別 / シャワー / コンロ種別(ガス) / コンロ口数(二口) / システムキッチン / 追い焚き / エアコン / 室内洗濯機置き場 / CSアンテナ / BSアンテナ / オートロック / エレベータ / バルコニー / フローリング / 宅配ボックス / internet対応(その他インターネット) / 角部屋 / TVドアホン / 温水洗浄便座 / 浴室乾燥機 / キッズルーム / 防犯カメラ / 照明器具付き / 楽器相談可 / 事務所可 / ペット相談
※設備をクリック頂くと設備で条件を絞ることが可能です
外観

都会に住みながら、四季の移ろいと緑の潤いを感じられる特別な住まい──。
建物を包み込むように配置されたグリーンウォールが、まるで“都市に浮かぶ庭園”のような印象を与える、洗練されたレジデンスです。エントランスは、立体的な植栽が生み出す柔らかな陰影と、上質な素材が醸し出す重厚感が調和したデザイン。毎日の帰宅が、自然に迎えられる心地よいひとときへと変わります。
エントランス

上質さが静かに薫る、洗練されたエントランス。
重厚な石材と柔らかな間接照明が織りなす空間は、住まう方を優しく迎え入れ、外界から日常へと気持ちを切り替える特別なアプローチとなっています。ガラス扉越しに広がるロビーは、ホテルライクな明るさと落ち着きを兼ね備え、住まいとしての安心感と上質なステイタスを感じさせるデザイン。細部まで計算された照明が、空間全体を美しく際立たせ、訪れるたびに心を満たしてくれます。
エントランスホール

木調の温もりと洗練された石材が美しく調和するエントランスホール。
上質な素材が織りなす穏やかな空間は、外の喧騒を忘れさせ、住まう方の心を静かに落ち着かせます。天井に施された柔らかな間接照明が、空間全体に上質な陰影を生み出し、ホテルライクな雰囲気を演出。大きなガラス面からは外観のグリーンが自然光とともに差し込み、まるで室内にいながら自然を感じられる心地よさがあります。
「ザ・パークハビオSOHO南青山」のおすすめポイント
お部屋探しでお困りの方へ
株式会社ヴィダックスでは、渋谷を中心に東京都内の最新の賃貸情報(マンション・アパート・戸建)をお届けしています。
任せてよかったと納得、安心していただけるお部屋探しのサポートを提供させていただきます。
ご希望のお部屋がホームページに掲載されていない場合でもご安心ください。家主様のご都合でインターネットに掲載できないご希望エリアの物件をご紹介させていただきます。
「賃貸・売買で契約の事がわからない」「遠方で来店ができない」「初期費用を抑えたい」等のお悩みはお気軽にご相談ください。