今回ご紹介させていただきます「パークハウス代々木公園アーバンス」は、渋谷区・松濤エリアの高級住宅街に位置する人気の賃貸マンション。東京メトロ千代田線「代々木公園駅」、小田急小田原線「代々木八幡駅 」駅、の2路線が利用可能で、アクセスも良好。周辺にはスーパーや飲食店、おしゃれなカフェも多く、生活利便性に優れています。また、代々木公園が徒歩圏内なのも良いポイント。重厚感のある外観と充実した設備が魅力で、カップル、ファミリーの方にオススメです。仕事や通学に便利な立地で、都市生活を快適に楽しめる住まいです。
「パークハウス代々木公園アーバンス」について
「パークハウス代々木公園アーバンス」の物件概要

| 所在地 | 東京都渋谷区富ヶ谷1丁目 |
|---|---|
| 最寄駅 | 東京メトロ千代田線/代々木公園駅 徒歩2分 小田急小田原線/代々木八幡駅 徒歩2分 |
| 築年数 | 2005年10月 |
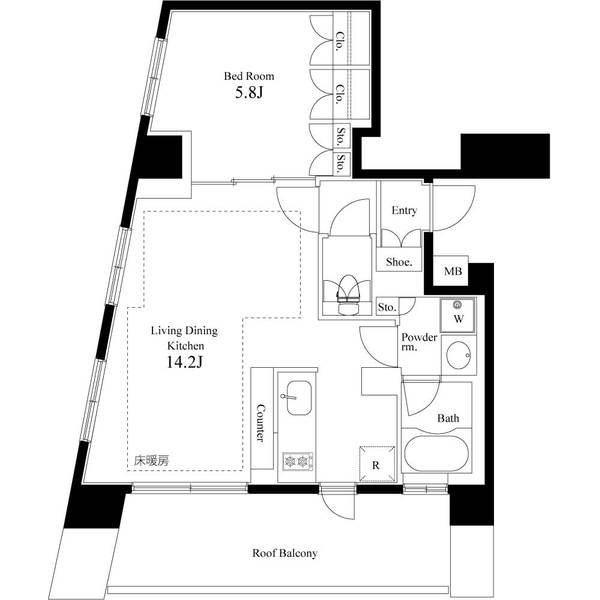
| 間取り | 1LDK |
| 構造 | 鉄筋コンクリート |
「パークハウス代々木公園アーバンス」の室内詳細
間取り

水道(公営) / ガス(都市) / 排水(下水) / バス専用共同(専用) / トイレ専用共同(専用) / バス・トイレ別 / コンロ種別(ガス) / コンロ口数(二口) / システムキッチン / 追い焚き / エアコン / BSアンテナ / オートロック / エレベータ / バルコニー / フローリング / 宅配ボックス / 駐輪場 / internet対応(その他インターネット) / TVドアホン / 温水洗浄便座 / 浴室乾燥機 / ごみ出し24時間OK / 独立洗面台 / 防犯カメラ / カード決済(初期費用) / クローゼット / シューズボックス / 二人入居可 / 床暖房/ 敷地内ゴミ置き場/分譲賃貸
※設備をクリック頂くと設備で条件を絞ることが可能です
LDK/洋室

こちらは1LDKタイプ、広さ14.2帖の洋室でございます。2面採光を確保しているため、日当たりが大変良好で、一日中明るい陽射しが室内に差し込みます。また、憧れのカウンターキッチンや贅沢な床暖房など充実な設備が揃っております。広々とした空間は、初めての二人暮らしを始められる方に特におすすめです。快適で穏やかな暮らしを叶える、理想的なプライベート空間です。
キッチン

こちらのキッチンには、2口ガスコンロを備えており、本格的な調理も可能でございます。十分な調理スペースに広々したシンク、大型の冷蔵庫や様々なキッチン家電もゆったりと配置でき、快適にお料理を楽しめる設計です。可愛い赤のキッチンでカウンター越しに料理をする生活が楽しみですね。
バスルーム

浴槽には、自動でお湯張りや温め直しができる追い焚き機能が付いておりますので、いつでも温かいお風呂にご入浴いただけます。また、雨の日のお洗濯に便利な浴室乾燥機を完備。一日の疲れを癒す、快適な浴室空間をご提供いたします。また、窓付なのも換気も出来ることから嬉しいポイント。
洗面所

清潔感あふれる水回りは、毎日を快適に過ごせる空間です。独立した洗面台はスタイリッシュなデザインで、鏡の裏も収納完備で使い勝手も考慮されています。また、備え付きのドラム式洗濯機で家電の用意も不要。費用を抑えて引っ越し出来ますね。
トイレ

トイレは完全独立型で、衛生的な手洗い場が付いています。シンプルな設計で落ち着きあるデザインとなっております。便座には寒い日も快適な暖房便座付き温水シャワートイレを完備しており、一年中気持ちよく利用できます。
収納

洋室には、豊富な衣類をまとめて収納できるクローゼットを完備しています。ハンガーパイプと棚が効率よく配置されており、コートやワンピースなどの丈の長い衣類から、バッグや小物類までたっぷり収納可能です。居室空間をすっきりと保ち、快適な生活空間を提供します。
「パークハウス代々木公園アーバンス」のおすすめポイント
お部屋探しでお困りの方へ
株式会社ヴィダックスでは、渋谷を中心に東京都内の最新の賃貸情報(マンション・アパート・戸建)をお届けしています。
任せてよかったと納得、安心していただけるお部屋探しのサポートを提供させていただきます。
ご希望のお部屋がホームページに掲載されていない場合でもご安心ください。家主様のご都合でインターネットに掲載できないご希望エリアの物件をご紹介させていただきます。
「賃貸・売買で契約の事がわからない」「遠方で来店ができない」「初期費用を抑えたい」等のお悩みはお気軽にご相談ください。